



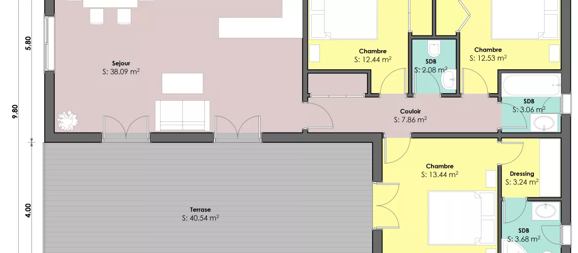
Le même plan 3 versions différentes
Toiture plate - Monopente- 2 pentes pourrait aussi exister en 4 pentes
L'architecture de nos maisons bois🌲 s'adapte parfaitement aux besoins des PLU, à vos souhaits, à la configuration de votre terrain.
Avec ce plan vous pouvons constaster que suivant le type de toiture de maison retenu, la vue extérieure de votre construction sera différente.🏠🏡
En point commun, nous avons l'habitude de privilégier de beaux avant-toits pour protéger murs et vitrages et rendre l'entretien de votre habitation plus facile.😉😊