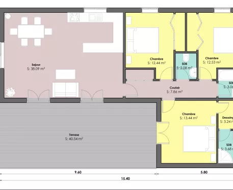
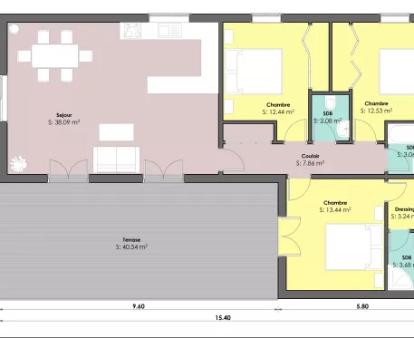
Nous sommes nombreux à aimer cette maison aux formes très contemporaines, ossature bois de haut de gamme.
Elle est parfaitement implantée sur son terrain et permettra de profiter de l'environnement renforçant le sentiment de sérénité.
Avec ces larges parties vitrées la maison est lumineuse.
A l'intérieur les volumes que permet de dégager la charpente rampante augmente la sensation de bien-être.
Cette maison peut être réalisée en madriers contre-collés traditionnels avec isolation par l'intérieur ou en madrier non-tassants pouvant donner un c&achet encore plus contemporain.
Nous sommes à votre disposition pour donner une réalité à vos rêves.
Cordialement l'équipe Ambiances Bois Concepts