



Nouveau modèle Ossature bois
Notre gamme Studio Kub
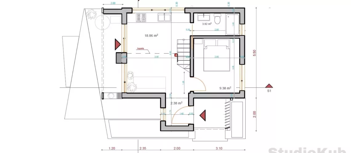
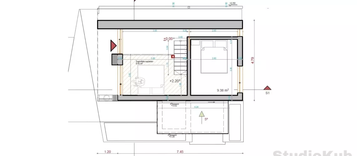
Avec notre parenaire Studi Kub en ce début d'année, nous sommes ravis de vous présenter un modèle à l'architecture moderne et élégant.
54 m² construits avec rdc et mezzanie pour une surface habitable de 42 m². Son confort en hiver et en été sont très performants.
Ce modèle est présenté en formule jors d'eau-hors d'air ou version clé en mains.